O noclegu
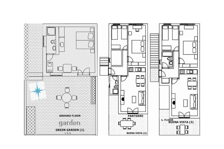
GREEN GARDEN & BUENA VISTA znajduje sie w Rovinj – Rovinj - Borik, 150 m od morza i moze pomiescic 2–12 osob w 3 jednostkach zakwaterowania. Wlasciciel mowi w jezykach: ENG, GER, ITA, HRV.
Lubisz naturę? Tak, to trafiłeś we właściwe miejsce!
Chętnie prześlemy Państwu kolejne zdjęcia i informacje - wystarczy wypełnić formularz!
Nasz dom położony jest 2 km od centrum miasta, w sosnowym lesie na półwyspie "Monsena" we wsi "Borik". Jest to 5 minut spacerem od piaszczystej plaży "Valdeliso" z cienia i schludny morza, plac zabaw i malownicze kawiarnie.
Apartamenty są fizycznie i optycznie izolowane. Apartament na parterze posiada własny ogród otoczony murem, a mieszkania na parterze i pierwszym piętrze mają prywatne, zamknięte tarasy. Wszystkie pokoje wyposażone są w grill gazowy, parasol i meble ogrodowe.
Wejścia są oddzielone, i parking w podwórzu.
Dom położony jest w ślepej uliczce, naprzeciwko parku, co zapewnia ciszę i spokój w ciągu dnia iw nocy, ale dzięki jego centralne położenie, wszystko jest dostępne: sklepy, sklep spożywczy, przystanek autobusowy, pizzeria, restauracje, centrum sportu i rozrywki - wszystko to pięć minut spacerem. Dzieci są mile widziane!
Apartamenty wyposażone są w łóżko dla dziecka, bezpieczniki w gniazdach, siatki przeciw owadom. Dzieci mogą bezpiecznie bawić się w piaskownicy na tarasie, jeździć na rowerze lub grać w ping-ponga na placu zabaw w parku przed domem.
Akcesoria: ekspres do kawy, toster, czyste ręczniki i pościel 1 x na tydzień.
NOWOŚĆ: Możliwość wypożyczenia rowerów dla specjalnej cenie - 5 EUR / dzień.
Nasze ceny zawierają: pieszo - 150 metrów od plaży, w ciszy i spokoju - w impasie, zieleni - w ogrodzie, parku lub na plaży.
